One John Street
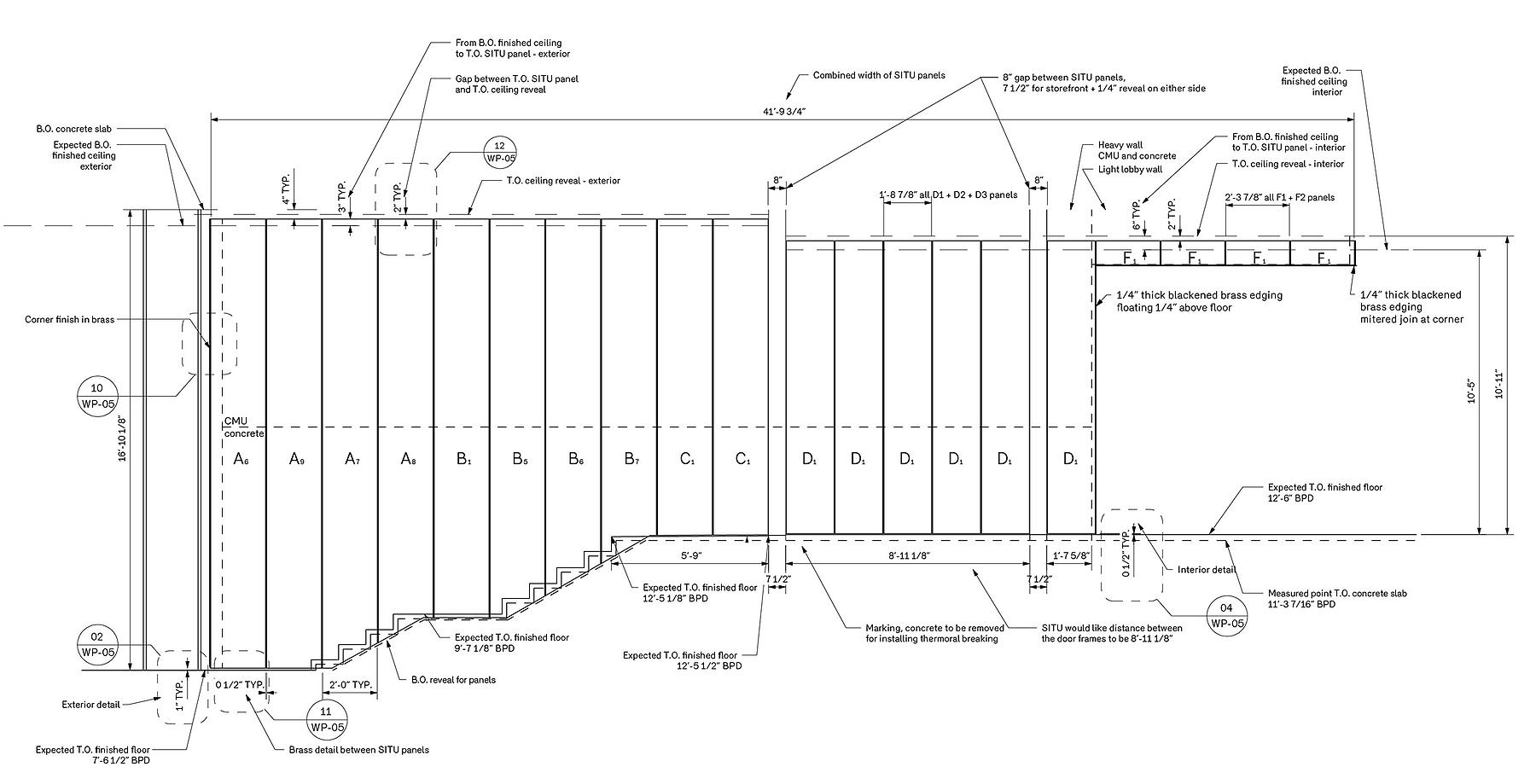
Working for the New York development group Alloy, SITU designed and built a series of sculptural concrete panels for the entry of One John Street, a residential building in Brooklyn Bridge Park.
Each panel was created with a uniquely textured surface using a custom fabrication process we developed for this project.
Experimenting with a variety of treatments and techniques, we worked through a series of iterative material samples that explored the aesthetics of erosion and encaustic. Ultimately, we arrived at a casting technique which creates an evenly distributed pattern and coloration across the field of panels while also allowing for each component to have its own subtle variations.
The surface texture was achieved by casting fiber-reinforced concrete against layers of crinkled paper and acetate, with patches of beeswax and salt directly applied to the surface. After curing for a number of days, the 17-ft tall panels were moved to a custom-built oven table, to artfully melt away the wax and extract most of the salt from the face of the panels. As a result, residual patches of crystallized salt remain embedded in the surface to create accents on the dark concrete.
In total, we produced 64 panels to clad both interior and exterior portions of the building. With the exterior panels exposed to the elements and all surfaces left untreated, the appearance of each component evolves over time.
Client
Architects
Alloy / SITU
Location
Brooklyn, NY
Completion
2016
Photography
SITU















